When designing a tiny house, every square foot counts, and every design decision can profoundly impact livability and aesthetics. That’s where the optional custom bump outs come in More than just an extension, a bump out is a powerful architectural feature that can transform your tiny home, inside and out. Its been a massively popular option for many years and we have them on our own tiny houses as well.

A custom bump out is an incredibly valuable investment: $475 for an 8.5-foot wide trailer, and $575 for 10-foot wide trailers up to 12-foot wide trailers. This option opens up more possibilities for design and function. Even if you are limited on overall trailer length you can still utilize the area on the tongue for more square feet in your design. They are best paired with the extended tongue option.

Beyond the Box: Custom Shapes and Sizes
The real value of our custom bump outs is their complete customizability. We can create nearly any design to fit your vision:
- Rectangular Bump Outs: The most common choice for maximizing efficient and usable interior space. we can do any size, most popular is 56in wide x 28in deep for a finished interior size of 8sq/ft (4ft x 2ft)
- Angled Bump Outs: Adding a unique visual flair and dynamic interior angles. these are nice for front facing bay windows, You can choose how wide you want the leading edge of the bumpout and they can angle to meet the corners of the front deck of the trailer.
- Square Bump Outs: Perfect for creating unique architectural interest and custom interior niches of they can be used for exterior storage. common sizes are 2ft x 2ft.
The best part? There is no additional cost for custom layouts! You can design a bump out at any dimension that perfectly fits your specific needs.

Bump Outs for Maximizing Interior Space (Front and Rear)
The primary reason most people choose a bump out is to gain precious interior square footage.
The Front Bump Out
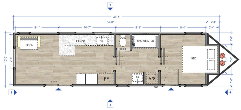
A popular front bump out dimension is 56 inches wide by 28 inches deep. This size provides an interior clear space of 4 feet wide by 2 feet deep, adding a valuable 8 square feet to your tiny home! This is how we utilized that space in our own tiny house:

This extra space is perfect for:
- A dedicated washer/dryer unit in a utility closet or bathroom.
- A custom 4ft wide vanity with plenty of counter space.
- An integrated desk or office alcove.
- Accommodating an outdoor AC unit or propane tanks while maintaining tow clearance (when used for exterior storage).
Towing Note: For wider front bump outs, especially on 10-foot and 12-foot wide trailers, combining this feature with an extended tongue is highly recommended. This ensures you have the necessary turning radius without the towing vehicle hitting the house.

The Ultimate Space Saver: A Queen Bed Nook
For those on a 10-foot wide trailer aiming to fit a comfortable bed, a custom bump out can accommodate a queen-size mattress. Since a standard queen bed is approximately 60 inches wide, the bump out needs to be at least 68 inches wide to account for rough wall framing. This is a brilliant way to create a dedicated, full-size sleeping area without compromising the rest of your main floor.

The Power of the Rear Bump Out
While the front bump out is common, we are increasingly seeing the incredible potential of rear custom bump outs.
On our own personal 30ft tiny house used as a bedroom unit (which features a bathroom, office, and master bedroom), we utilized both a front and a rear bump out!
- Front Bump Out: 56 inches wide by 28 inches deep (used for the vanity in the bathroom).
- Rear Bump Out: 56 inches wide by 28 inches deep (used in the master bedroom).

Our rear bump out, which features a large casement window, is designed for a dual purpose:
- The Dog Nook: The floor space is used as a dedicated sleeping area for our two dogs.
- The Reading Nook: A platform will be built above the dog nook, creating a cozy, elevated reading bench right in the master bedroom.
When you look at photos of our master bedroom, the addition of the rear bump out with its window and unique reading platform transforms the space. It feels less like a traditional tiny house bedroom and more like a custom, architecturally rich space found in a traditional home.
Rear bump outs can also be used for:
- An expanded bathroom or mudroom.
- A dedicated laundry area.
- A specialized storage area near an entryway.
Beyond Interior: Creative Uses for Bump Outs
While approximately 95% of our customers use bump outs for interior living space, their versatility extends far beyond that!

Exterior Storage Solutions
A bump out can be strategically designed for dedicated exterior storage, keeping utilities and off-grid equipment tucked away:
- Off-Grid Systems: Ideal for battery banks, solar charge controllers, and inverters.
- Utilities: A secure, enclosed spot for a water heater, tools, or accessories.

Cat Patios (Catios!)
A screened-in front or rear extension can be transformed into a secure catio, allowing your feline friends to safely enjoy the outdoors. This is a unique and pet-friendly architectural detail that adds charm to your home.

Whether you’re looking for extra interior space for a washer/dryer, a creative nook for a queen bed, a versatile front-and-rear solution like we have, or just a clever spot for storage, a custom bump out is the perfect way to make your tiny house truly yours.





